Câu 1 [859660]: Một thanh dầm hình hộp chữ nhật được cắt từ một khúc gỗ hình trụ có bán kính đáy bằng
sao cho thanh dầm có diện tích mặt cắt ngang lớn nhất, tức là thanh dầm có mặt cắt ngang là hình vuông. Sau khi cắt thanh dầm đó, người ta lại cắt bốn tấm ván hình hộp chữ nhật từ bốn phần còn lại của khúc gỗ (tham khảo hình vẽ dưới đây). Xác định diện tích mặt cắt ngang tối đa của mỗi tấm ván (theo đơn vị
và làm tròn kết quả đến hàng phần chục).
sao cho thanh dầm có diện tích mặt cắt ngang lớn nhất, tức là thanh dầm có mặt cắt ngang là hình vuông. Sau khi cắt thanh dầm đó, người ta lại cắt bốn tấm ván hình hộp chữ nhật từ bốn phần còn lại của khúc gỗ (tham khảo hình vẽ dưới đây). Xác định diện tích mặt cắt ngang tối đa của mỗi tấm ván (theo đơn vị
và làm tròn kết quả đến hàng phần chục).

Vì
là tam giác vuông cân tại
nên ta được 
Xem phần còn lại của tấm bìa là phần đồ thị bên trên
của đường tròn 
Gọi
với
Ta có, diện tích tấm bìa hình chữ nhật được cắt ra là

Xét hàm số
.Ta có



Với điều kiện đã cho, ta được
. Do đó

.Đáp án : 67,3
Câu 2 [5884]: Người ta muốn mạ vàng cho bề mặt phía ngoài của một cái hộp dạng hộp đứng không nắp (nắp trên), có đáy là một hình vuông. Tìm chiều cao của hộp để lượng vàng phải dùng để mạ là ít nhất, biết lớp mạ ở mọi nơi như nhau, giao giữa các mặt là không đáng kể và thể tích của hộp là
.
. A, 

B, 

C, 

D, 

Gọi cạnh đáy là
chiều cao là 
Diện tích đáy là
Diện tích xung quanh là
Ta có:

Lượng vàng cần phải dùng là
Dấu bằng xảy ra khi và chỉ khi
Chọn A. Đáp án: A
chiều cao là 
Diện tích đáy là

Diện tích xung quanh là

Ta có:

Lượng vàng cần phải dùng là

Dấu bằng xảy ra khi và chỉ khi
Chọn A. Đáp án: A
Câu 3 [327627]: Cho một tấm nhôm hình vuông cạnh
như hình vẽ dưới đây. Người ta cắt phần tô đậm của tấm nhôm rồi gập thành một hình chóp tứ giác đều có cạnh đáy bằng
Tìm giá trị của
để khối chóp nhận được có thể tích lớn nhất.
như hình vẽ dưới đây. Người ta cắt phần tô đậm của tấm nhôm rồi gập thành một hình chóp tứ giác đều có cạnh đáy bằng
Tìm giá trị của
để khối chóp nhận được có thể tích lớn nhất.
A, 

B, 

C, 

D, 

Đặt cạnh bên là
và cạnh đáy của chóp đều là
ta đi tìm mối quan hệ giữa
và
Độ dài đường cao của một mặt bên là:
Khi đó theo hình 1 ta được:
(bằng nhau và bằng đường chéo hình vuông)
Lại có:
Suy ra
Xét hàm số:
trên
ta có:
Từ đó suy ra
đạt được khi
Chọn C.
Đáp án: C
và cạnh đáy của chóp đều là
ta đi tìm mối quan hệ giữa
và
Độ dài đường cao của một mặt bên là:
Khi đó theo hình 1 ta được:
(bằng nhau và bằng đường chéo hình vuông)
Lại có:
Suy ra
Xét hàm số:
trên
ta có:
Từ đó suy ra
đạt được khi
Chọn C.
Đáp án: C
Câu 4 [1003415]: Cho một tấm bìa hình chữ nhật chiều dài
chiều rộng
Người ta cắt 6 hình vuông bằng nhau như hình vẽ, mỗi hình vuông cạnh bằng
rồi gập tấm bìa lại như hình vẽ dưới đây để được một hộp quà có nắp.
Khi
[[20529548]] (cm) thì hộp nhận được có thể tích lớn nhất và thể tích đó bằng [[20529551]] 
Kéo các ô sau thả vào vị trí thích hợp để được khẳng định đúng:
chiều rộng
Người ta cắt 6 hình vuông bằng nhau như hình vẽ, mỗi hình vuông cạnh bằng
rồi gập tấm bìa lại như hình vẽ dưới đây để được một hộp quà có nắp.
Khi
[[20529548]] (cm) thì hộp nhận được có thể tích lớn nhất và thể tích đó bằng [[20529551]] 
Kéo các ô sau thả vào vị trí thích hợp để được khẳng định đúng:
Hộp quà là hình hộp chữ nhật có chiều cao là 
Đáy là hình chữ nhật với hai kích thước lần lượt là
và 
Vậy thể tích của hộp quà là

Áp dụng bất đẳng thức Co-si với
ta có:
dấu “=” xảy ra khi và chỉ khi 
Ta có:


Áp dụng bđt Co-si với
ta có:





Dấu bằng xảy ra khi và chỉ khi

Đáy là hình chữ nhật với hai kích thước lần lượt là
và 
Vậy thể tích của hộp quà là


Áp dụng bất đẳng thức Co-si với
ta có:
dấu “=” xảy ra khi và chỉ khi 
Ta có:



Áp dụng bđt Co-si với
ta có:




Dấu bằng xảy ra khi và chỉ khi

Câu 5 [1003416]: Một bạn đã cắt tấm bìa carton phẳng và cứng có kích thước như hình vẽ. Sau đó bạn ấy gấp theo đường nét đứt thành một hình chữ nhật. Hình hộp có đáy là hình vuông cạnh
chiều cao là
và diện tích tấm bìa là 
Thể tích khối hộp lớn nhất bằng [[20529587]]
khi đó
[[20529588]] 
Kéo các ô sau thả vào vị trí thích hợp để được khẳng định đúng:
chiều cao là
và diện tích tấm bìa là 
Thể tích khối hộp lớn nhất bằng [[20529587]]
khi đó
[[20529588]] 
Kéo các ô sau thả vào vị trí thích hợp để được khẳng định đúng:
Thể tích của khối hộp là 
Diện tích của tấm bìa là
Từ
suy ra 
Suy ra
Mặt khác
nên
xảy ra khi và chỉ khi 
Thế vào
ta được

Diện tích của tấm bìa là

Từ
suy ra 
Suy ra

Mặt khác
nên
xảy ra khi và chỉ khi 
Thế vào
ta được
Câu 6 [382885]: Trong một đợt tổ chức cho học sinh tham gia dã ngoại ngoài trời. Để có thể có chỗ nghỉ ngơi trong quá trình tham quan dã ngoại, các bạn học sinh đã dựng trên mặt đất bằng phẳng 1 chiếc lều bằng bạt từ một tấm bạt hình chữ nhật có chiều dài là
và chiều rộng là
bằng cách: Gập đôi tấm bạt lại theo đoạn nối trung điểm hai cạnh là chiều rộng của tấm bạt sao cho hai mép chiều dài còn lại của tấm bạt sát đất và cách nhau
(xem hình vẽ). Khoảng không gian phía trong có thể tích lớn nhất bằng bao nhiêu?
và chiều rộng là
bằng cách: Gập đôi tấm bạt lại theo đoạn nối trung điểm hai cạnh là chiều rộng của tấm bạt sao cho hai mép chiều dài còn lại của tấm bạt sát đất và cách nhau
(xem hình vẽ). Khoảng không gian phía trong có thể tích lớn nhất bằng bao nhiêu?

Gọi tên như hình vẽ với
là trung điểm của

Xét tam giác
vuông tại
theo định lý







Áp dụng bất đẳng thức,

ta có:

Dấu bằng xảy ra khi

Vậy
khi
Câu 7 [5938]: Gia đình Toán xây một bể nước dạng hình hộp chữ nhật có nắp dung tích
. Đáy bể là một hình chữ nhật có chiều dài gấp đôi chiều rộng được làm bằng bê tông có giá
đồng/
, thân bể được xây bằng gạch có giá
đồng/
và nắp bể được làm bằng tôn có giá
đồng/
. Hỏi chi phí thấp nhất gia đình Toán cần bỏ ra để xây bể nước là bao nhiêu nghìn đồng (làm tròn kết quả đến hàng đơn vị)?
. Đáy bể là một hình chữ nhật có chiều dài gấp đôi chiều rộng được làm bằng bê tông có giá
đồng/
, thân bể được xây bằng gạch có giá
đồng/
và nắp bể được làm bằng tôn có giá
đồng/
. Hỏi chi phí thấp nhất gia đình Toán cần bỏ ra để xây bể nước là bao nhiêu nghìn đồng (làm tròn kết quả đến hàng đơn vị)?
Đổi 
Gọi chiều dài và chiều rộng đáy bể lần lượt là
và
Diện tích đáy là
diện tích xung quanh là
Thể tích bể nước:
Ta có:
(nghìn đồng)

Vậy
nghìn đồng.
Điền đáp số: 2281 nghìn đồng

Gọi chiều dài và chiều rộng đáy bể lần lượt là
và
Diện tích đáy là
diện tích xung quanh là
Thể tích bể nước:
Ta có:
(nghìn đồng)
Vậy
nghìn đồng. Điền đáp số: 2281 nghìn đồng
Câu 8 [390558]: Cần phải đặt một ngọn đèn điện ở phía trên và chính giữa một cái bàn hình tròn có bán kính
Hỏi phải treo ở độ cao h bằng bao nhiêu mét để mép bàn được nhiều ánh sáng nhất. Biết rằng cường độ sáng C được biểu thị bởi công thức
(
là góc nghiêng giữa tia sáng và mép bà và
là khoảng cách từ bóng đèn đến mép bàn) (viết kết quả làm tròn đến hàng phần trăm).
Hỏi phải treo ở độ cao h bằng bao nhiêu mét để mép bàn được nhiều ánh sáng nhất. Biết rằng cường độ sáng C được biểu thị bởi công thức
(
là góc nghiêng giữa tia sáng và mép bà và
là khoảng cách từ bóng đèn đến mép bàn) (viết kết quả làm tròn đến hàng phần trăm).
Dựa vào hình ảnh minh họa, ta có:
Đặt
Có:



Bảng biến thiên:

Dựa vào bảng biến thiên, để mép bàn được nhiều ánh sáng nhất thì giá trị của
là:
Đặt
Có:




Bảng biến thiên:

Dựa vào bảng biến thiên, để mép bàn được nhiều ánh sáng nhất thì giá trị của
là:
Câu 9 [1003057]: Hai con tàu A và B đang ở cùng một vĩ tuyến và cách nhau 5 hải lý. Đồng thời cả hai tàu cùng khởi hành, tàu A chạy về hướng Nam với 6 hải lý/giờ, còn tàu B chạy về vị trí hiện tại của tàu A với vận tốc 7 hải lý/giờ (xem hình vẽ). Hãy tính khoảng cách ngắn nhất giữa hai con tàu (tính từ lúc khởi hành đến khi tàu B đến vị trí ban đầu của tàu A) (đơn vị hải lý, làm tròn kết quả đến hàng phần trăm)?
1.Phương pháp: Áp dụng định Pythagore trong tam giác vuông. Và xét sự biến thiên của hàm số để xác định khoảng cách min.
2. Cách giải:
Giả thiết cho: Hai tàu A và B cách nhau 5 hải lý và tàu B chạy đến vị trí A với vận tốc 7 hải lý/giờ nên thời gian mà tàu B đi đến được vị trí A là
(giờ).



vuông tại 



Đặt
min; 


Ta có bảng biến thiên:


hải lý.
3. Kết luận:
Vậy khoảng cách ngắn nhất giữa hai tàu là 3,25 hải lý.
Điền đáp án: 3,25.
2. Cách giải:
Giả thiết cho: Hai tàu A và B cách nhau 5 hải lý và tàu B chạy đến vị trí A với vận tốc 7 hải lý/giờ nên thời gian mà tàu B đi đến được vị trí A là
(giờ).


vuông tại 



Đặt
min; 


Ta có bảng biến thiên:


hải lý.3. Kết luận:
Vậy khoảng cách ngắn nhất giữa hai tàu là 3,25 hải lý.
Điền đáp án: 3,25.
Câu 10 [383952]: [Trích Đề thi mẫu ĐGNL ĐHQG Hà Nội]: Người ta cần chế tạo các món quà lưu niệm bằng đồng có dạng khối chóp tứ giác đều, được mạ vàng bốn mặt bên và có thể tích bằng
Diện tích mạ vàng nhỏ nhất của khối chóp bằng bao nhiêu
(Kết quả làm tròn đến hàng đơn vị)
Diện tích mạ vàng nhỏ nhất của khối chóp bằng bao nhiêu
(Kết quả làm tròn đến hàng đơn vị)
Giả sử chóp tứ giác đều là
Gọi 
Đặt
ta có 
Gọi M là trung điểm của CD ta có:


Ta có:
áp dụng định lí Pytago ta có:


Để diện tích mạ vàng nhỏ nhất thì
nhỏ nhất
đạt giá trị nhỏ nhất. Ta có:



(BĐT Cauchy). Vậy diện tích mạ vàng nhỏ nhất là:

Câu 11 [390559]: Một người thợ thủ công muốn làm một con diều bằng giấy có kích thước 
như hình vẽ bên. Khi diện tích con diều lớn nhất, em hãy tính độ dài đường chéo
theo đơn vị mét. 

như hình vẽ bên. Khi diện tích con diều lớn nhất, em hãy tính độ dài đường chéo
theo đơn vị mét. 
Cách 1: Xem video bài giảng (cách này sẽ ngắn hơn)
Cách 2: Sử dụng phương pháp hàm số.
Gọi
là giao điểm của
và
.
Gọi
là độ dài của
Diện tích của con diều là:
=
với 
Lại có:

Do vậy


Bảng biến thiên:

Dựa vào bảng biến thiên, suy ra khi diện tích con diều lớn nhất thì độ dài đường chéo
là:
Cách 2: Sử dụng phương pháp hàm số.
Gọi
là giao điểm của
và
.Gọi
là độ dài của
Diện tích của con diều là:
=
với 
Lại có:


Do vậy



Bảng biến thiên:

Dựa vào bảng biến thiên, suy ra khi diện tích con diều lớn nhất thì độ dài đường chéo
là:
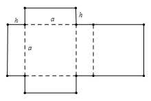
Câu 12 [31068]: Từ một khúc gôc tròn hình trụ, đường kính bằng
cần xẻ thành một chiếu xà có tiết diện ngang là hình vuông và 4 miếng phụ kích thước
như hình vẽ. Hãy xác định
để diện tích sử dụng theo tiết diện ngang là lớn nhất? (làm tròn kết quả đến hàng phần trăm)
cần xẻ thành một chiếu xà có tiết diện ngang là hình vuông và 4 miếng phụ kích thước
như hình vẽ. Hãy xác định
để diện tích sử dụng theo tiết diện ngang là lớn nhất? (làm tròn kết quả đến hàng phần trăm)
Ta có:
Theo Pitago ta có
Diện tích sử dụng theo tiết diện ngang lớn nhất khi diện tích miếng phụ là
lớn nhất.
Ta có:

Hàm số
có BBT

Suy ra
lớn nhất khi 
Theo Pitago ta có

Diện tích sử dụng theo tiết diện ngang lớn nhất khi diện tích miếng phụ là
lớn nhất. Ta có:


Hàm số
có BBT 
Suy ra
lớn nhất khi 
Câu 13 [28857]: Một chú cá hồi bơi ngược dòng để vượt một khoảng cách
. Vận tốc dòng nước là
. Nếu vận tốc bơi của con cá khi nước đứng yên là
thì năng lượng tiêu hao của cá trong
giờ được cho bởi công thức
, trong đó c là một hằng số,
được tính bằng jun. Giả sử
, hãy tính năng lượng tiêu hao tối thiểu của chú cá hồi.
. Vận tốc dòng nước là
. Nếu vận tốc bơi của con cá khi nước đứng yên là
thì năng lượng tiêu hao của cá trong
giờ được cho bởi công thức
, trong đó c là một hằng số,
được tính bằng jun. Giả sử
, hãy tính năng lượng tiêu hao tối thiểu của chú cá hồi. A, 40250 jun.
B, 33750 jun.
C, 25960 jun.
D, 36450 jun.
Vận tốc khi cá bơi ngược dòng là 
Thời gian để cá bới vượt khoảng cách
là 
Năng lượng tiêu hao của cá khi ngược dòng là
Khảo sát hàm số
thì

Khi đó, năng lượng tiêu hao đạt giá trị nhỏ nhất là
Đáp án: B

Thời gian để cá bới vượt khoảng cách
là 
Năng lượng tiêu hao của cá khi ngược dòng là

Khảo sát hàm số
thì

Khi đó, năng lượng tiêu hao đạt giá trị nhỏ nhất là
Đáp án: B
Câu 14 [31026]: Cho hình thang cân
có đáy nhỏ
và hai cạnh bên đều có độ dài bằng
. Tìm diện tích lớn nhất
của hình thang.
có đáy nhỏ
và hai cạnh bên đều có độ dài bằng
. Tìm diện tích lớn nhất
của hình thang.
A, 

B, 

C, 

D, 


Đặt
Ta có: 




Chọn D. Đáp án: D
Câu 15 [390560]: Một vật nặng có khối lượng
được kéo dọc theo mặt phẳng nằm ngang nhờ một sợi dây hợp với phương ngang một góc
Trong Vật lí, ta biết rằng lực kéo
cần thiết để di chuyển vật được cho bởi công thức:
trong đó
là gia tốc trọng trường và
là hệ số ma sát của bề mặt
(Theo Sullivan and Miranda, Calculus, W.H. Freeman and Company, 2014).
Với
Tìm giá trị nhỏ nhất của lực kéo
Viết kết quả làm tròn đến hàng phần chục.
được kéo dọc theo mặt phẳng nằm ngang nhờ một sợi dây hợp với phương ngang một góc
Trong Vật lí, ta biết rằng lực kéo
cần thiết để di chuyển vật được cho bởi công thức:
trong đó
là gia tốc trọng trường và
là hệ số ma sát của bề mặt (Theo Sullivan and Miranda, Calculus, W.H. Freeman and Company, 2014).
Với
Tìm giá trị nhỏ nhất của lực kéo
Viết kết quả làm tròn đến hàng phần chục.
Ta có: 
Cho


Bảng biến thiên:

Dựa vào bảng biến thiên, ta thấy giá trị nhỏ nhất của lực kéo
, đạt tại khi

Cho


Bảng biến thiên:

Dựa vào bảng biến thiên, ta thấy giá trị nhỏ nhất của lực kéo
, đạt tại khi
Câu 16 [1003058]: Công ty X cần vận chuyển một lượng lớn hàng hóa từ nhà kho
đến cửa hàng
, lượng hàng hóa chia ra thành nhiều chuyến đi bằng một xe tải có tải trọng tối đa là 50 tấn. Công ty cần tính toán để tối ưu hóa tốc độ vận chuyển hàng hoá của xe. Biết rằng để bốc xếp
tấn hàng từ nhà kho
lên xe cần thời gian
giờ; Sau khi xe đến
, để di chuyển mỗi tấn hàng từ xe xuống cửa hàng
cần thời gian 3 phút. Tổng thời gian trung bình di chuyển từ nhà kho
đến cửa hàng
và quay về
là 1,2 giờ. Em hãy cho biết trong mỗi chuyến đi, xe nên vận chuyển bao nhiêu tấn hàng để khối lượng hàng hóa được vận chuyển trung bình trên mỗi giờ là lớn nhất? (kết quả làm tròn đến hàng phần mười)
đến cửa hàng
, lượng hàng hóa chia ra thành nhiều chuyến đi bằng một xe tải có tải trọng tối đa là 50 tấn. Công ty cần tính toán để tối ưu hóa tốc độ vận chuyển hàng hoá của xe. Biết rằng để bốc xếp
tấn hàng từ nhà kho
lên xe cần thời gian
giờ; Sau khi xe đến
, để di chuyển mỗi tấn hàng từ xe xuống cửa hàng
cần thời gian 3 phút. Tổng thời gian trung bình di chuyển từ nhà kho
đến cửa hàng
và quay về
là 1,2 giờ. Em hãy cho biết trong mỗi chuyến đi, xe nên vận chuyển bao nhiêu tấn hàng để khối lượng hàng hóa được vận chuyển trung bình trên mỗi giờ là lớn nhất? (kết quả làm tròn đến hàng phần mười)
Điền đáp án: 31,4
Tổng khối lượng hàng hóa:
(tấn)
Tổng thời gian:
(giờ)
Đặt
Đặt









Ta có bảng biến thiên:

Vậy xe nên vận chuyển
bao nhiêu tấn hàng để khối lượng hàng hóa được vận chuyển trung bình trên mỗi giờ là lớn nhất.
Tổng khối lượng hàng hóa:
(tấn)Tổng thời gian:
(giờ)Đặt

Đặt









Ta có bảng biến thiên:

Vậy xe nên vận chuyển
bao nhiêu tấn hàng để khối lượng hàng hóa được vận chuyển trung bình trên mỗi giờ là lớn nhất.